Santa Eulalia del Rio:
Can Buddha is an attractive and modern brand new unfurnished penthouse in a luxury development in the town of Santa Eulalia del Rio for annual rent
Property ID: Penthouse Can Buddha
















































































Monthly rent excl. IE:
Price on request
Living space:
83 sq. m.
No. of rooms:
2
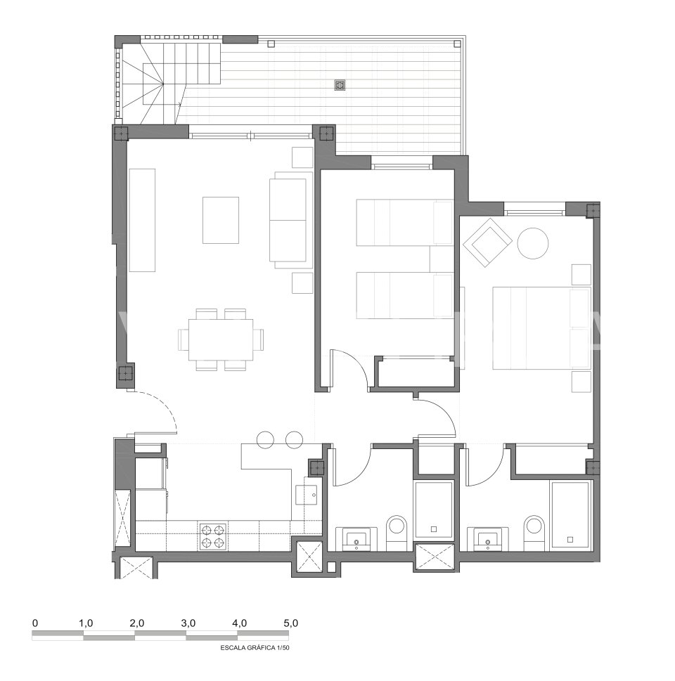
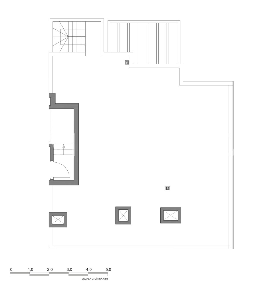
Can Buddha is an attractive and modern brand new unfurnished penthouse in a luxury development in the town of Santa Eulalia del Rio for annual rent from 1st September 2024. It has a fantastic private roof terrace with gazebo and kitchen, communal pool, parking and storage room.
Privileged location within walking distance to the market, the restaurant street, the beach and all the amenities of being in the town centre. Southwest facing, it enjoys lots of natural light and sun all day long.…
This penthouse is distributed in 2 bedrooms and 2 bathrooms - one of them en suite - living/dining room with open plan kitchen and access to a covered terrace of approx. 10,5 m2, from which there is access to a roof terrace of approx. 76,5 m2 (on the terrace there is a roofed area of about 20m2), summer kitchen and shower, parking space and storage room in the basement of the same building. Views to the Puig de Missa, to the communal swimming pool, to the hills and the sunset and -from the roof terrace- to the sea. This property is unfurnished so that you can furnish and decorate it to your taste and needs.
Layout:
2 double bedrooms with fitted wardrobes.
2 bathrooms (1 en suite)
Living-dining room
Open plan kitchen
Covered terrace
Roof terrace with pergola/pergola of approx. 20m2, summer kitchen, shower and wash basin
Communal pool
Parking space (optional)
Storage room (optional)
Communal garden and pool
Details:
Reinforced entrance door with security lock
Video intercom
Aluminium tilt and turn windows in the bedrooms with aluminium roller blinds
Aluminium sliding balcony windows
Double glazing
White lacquered built-in wardrobes
Kitchen with fridge, oven, induction hob, hob extractor fan
Electric hot water boiler
TV, FM, telephone and data sockets (DTT and ADSL) in bedrooms and living room
Modern bathrooms with marble details
High quality imitation wood ceramic flooring
Central hot/cold air-conditioning with LG low energy consumption technology
Terrace with high quality artificial grass, 2 designer sunbeds, integrated lighting and translucent glass barriers for privacy, hot water boiler, electricity and water connections.
Building with lift
Communal infinity swimming pool with salt electrolysis purification system.
High speed fibre optic connection in the building.
We are looking for a quiet and serious tenant with a proven track record.
Extras: electricity, water and annual rubbish tax.
Additional deposit and security deposit: 5.000€.
This fantastic flat is ideal for those Ibiza lovers who wish to have a second residence or a pied-à-terre on the island within Santa Eularia des Riu, in one of Ibiza's towns where you will find activity all year round. Steps away from the bus stop, restaurants, shops, pharmacies, post office, market, supermarkets and beach.
Location: about 400 metres from the beach and about 25 minutes from Ibiza town.
For more details or to arrange a viewing please contact Monica from Livinginibiza.com by WhatsApp or phone + 34 608 007 811.
Type of apartment: Attic apartment
Storey: 3
Number of floors: 3
Deposit or cooperative share: 5.000€
Subject to commission: no
Kitchen: Fitted kitchen, Open
Bathroom: Shower, Bidet
Number of bedrooms: 2
Number of bathrooms: 2
Balcony: 1
Terrace: 1
Guest WC: yes
Attic: yes
Pool: yes
Basement: Storage room
Air condition: yes
Lift: yes
Surroundings: Pharmacy, Bus, Shopping facilities, Movie theater, Near the highway, Pool, Post office, Playground, Close to the beach
Number of parking spaces: 1 x Underground parking , per item 150 €
Furnished: no
Views: Mountains
Quality of fittings: Superior
Year of construction: 2021
Vacant from: 01.09.2024
Floor covering: Tiles
Condition: First occupier
Fees
Sales
The brokerage commission for sales transactions is to be paid by the seller, in accordance with common practice in Ibiza.
Seasonal rentals
The brokerage commission is to be paid by the tenant, equivalent to one month’s rent plus VAT.
Long-term / annual rentals
As a general rule, the commission is paid by the landlord.
Exception: for luxury properties, the commission is paid by the tenant.
In both cases, the amount corresponds to one month’s rent plus VAT.
Tourist and short-term rentals
We do not manage or broker tourist accommodations or short-term rentals.
Legal Disclaimer Regarding Property Information
The information published on this website is for informational purposes only and is based on details provided by the respective property owners or sellers. While we make every effort to verify and maintain the content, we do not guarantee its accuracy, truthfulness, or completeness, in accordance with current Spanish regulations.
All properties, as well as their terms (price, availability, features, etc.), are subject to change, prior sale or rental, or withdrawal without notice.
This content does not constitute a binding contractual offer under Article 1,258 of the Spanish Civil Code, nor a public offer for sale within the meaning of applicable real estate regulations.
For complete and up-to-date information, please contact our team directly. All transactions are subject to proper documentation and compliance with applicable legal requirements.
Terms and Conditions – Living in Ibiza
1. Website Ownership
This website is owned by Clarup Ibiza SRL, with registered address at c/ Molins de Reí 8, 3F, 07840 Santa Eulalia del Rio, and VAT number NIF B72403637, registered in the Mercantile Registry of the Balearic Islands.
Email: info@living-in-ibiza.com
Phone: +34669032341
By accessing or using this site, you become a user and fully accept these terms and conditions.
2. Purpose
This website provides information about the real estate services of Clarup Ibiza SRL, including property sales and seasonal or long-term rentals, in accordance with applicable regulations in Ibiza, Balearic Islands, and Spain.
3. Website Use
Users must use this site lawfully and responsibly.
Prohibited:
Identity impersonation.
Unlawful or fraudulent use.
Uploading malware or harmful code.
4. Property Information
Information is based on data provided by owners or promoters. While Clarup Ibiza SRL strives for accuracy, we cannot guarantee that all content is complete, correct, or up to date.
Listings are subject to prior sale, rental, modification, or removal without notice. This information does not constitute a binding contractual offer.
5. Intellectual Property
All content (texts, images, videos, logos, etc.) is owned by Clarup Ibiza SRL or licensed third parties and is protected by intellectual property rights. Reproduction or use without permission is prohibited.
6. External Links
Links to third-party sites may be provided, for which Clarup Ibiza SRL assumes no responsibility.
7. Data Protection
Personal data is processed in accordance with the General Data Protection Regulation (EU 2016/679) and Spanish Organic Law 3/2018 (LOPDGDD). See our [Privacy Policy for details.
8. Liability
Clarup Ibiza SRL does not guarantee uninterrupted website access or error-free content. Use of the site is at your own risk.
9. Jurisdiction and Governing Law
These terms are governed by Spanish law. Any disputes shall be submitted to the Courts of Ibiza, waiving any other jurisdiction.
10. Modifications
Clarup Ibiza SRL may update these terms without prior notice. Users should review them periodically.
You might also like

Living in Ibiza
Phone: *** Rentals +34608007811 ***
Mobile phone: Sales +34669032341
07840 Santa Eulalia del Rio
Islas Baleares































































































































